No more renovation panic, making expensive, rushed decisions about something you’ve never heard of or thought about before with Reno, the web app for kitchen renovations. No rework, no do-overs, and no going over budget.

As featured in




“A brilliant home renovation app that came at the perfect time for us to make our renovation project much easier and enjoyable!”
Have a few options for your kitchen layout you want to play with? Trying to answer the kitchen island question? Choose from a library of resizeable items to pull together a plan.
Draw current, future and alternative kitchen layouts
All from your phone, tablet, or laptop

Where do you want the wall lights to go? How far from the wall? Easily show your builders and loved ones exactly where your kitchen furniture and furnishings go, wall by wall, with automatic, to scale wall elevation drawings.
Automatic kitchen elevation sketches
Drag, drop and change sizes
Share images direct from the app

Which areas need to be tiled, to what height, is there a skirting board? What pattern is the tiling? Are the walls to be painted? Skirting the same colour as the walls? Experiment with different colours, tones, tiles and splash backs using Reno's Decor feature with colours by your favourite paint brands Farrow & Ball, Little Greene, Mylands, Earthborn, Crown Paints, COAT and more coming soon.
Choose a paint colour
Add tiling and splash backs

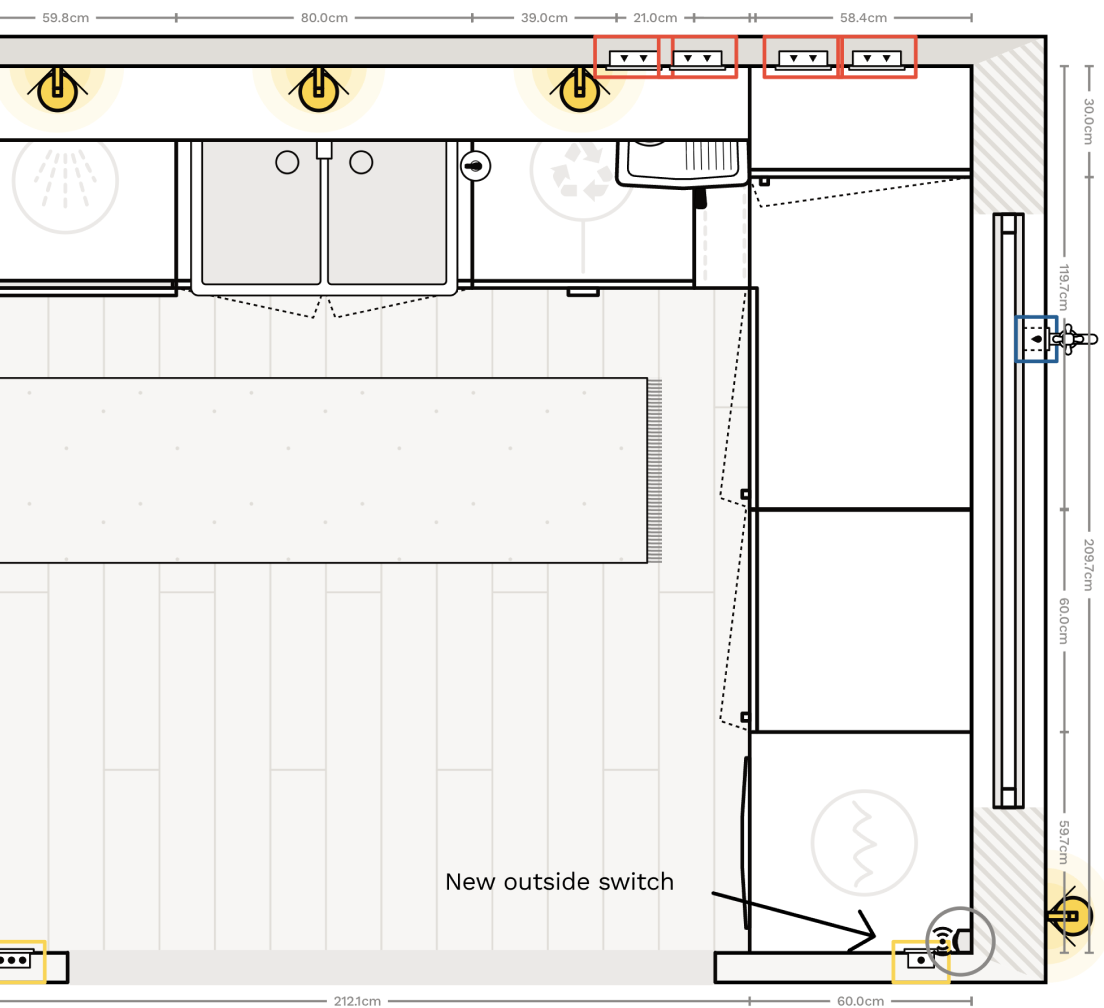
Know where you want your task, ambient and accent lighting? Create a detailed electrical plan to avoid any last-minute decisions with your electrician or builder pointing at the ceiling. Clearly show the positions of lights, switches, outlets, and extractor fans.
Electrical symbols
Detailed annotations

What's the minimum distance in front of a base unit cupboard door? And how much space do you need around a kitchen island? Want to understand your choices on water consumption, energy consumption and effort to fit? Get your questions answered with Reno's hints and tips.
Kitchen renovation hints and tips
Detailed pros and cons

Struggling to agree with a partner or family member? Add the inspiration images that you want to use for your kitchen to a simple and straightforward mood board with colour, textures, metals, fixtures, styles or product and accessories.
Create kitchen mood boards
Crop, pan and resize images

Feeling decision fatigue? Running out of energy? Make all the necessary decisions for your renovation project right from your sofa. Start your project off right with Reno's detailed Q&As.
Detailed Q&As
Get help making key decisions

Do you need new electrics? Could lighting cables be accessed from the room above? Has there been a leak? Add key information, like where your fusebox is, what it looks like, as well as room access and your reasons for the renovation.
Guided photo upload
Room access information
Property information

Ready to get feedback and quotes? Send a link, image or download and print a pdf of your Reno plan.
Print a copy
Share a link

Ready for quotes? Whether a neighbour recommended someone, or you found details on Facebook, it doesn't matter. Just send your trusted tradespeople your Reno link, and they can add their quote, notes, and questions in minutes.
Collect and compare kitchen quotes
Accept your preferred quote

Kitchen
What order to do what and when for a kitchen renovation
Where to start, the decisions to make in what order and what to expect when it comes to the work to complete your kitchen renovation.
Kitchen
Where to put plug sockets in a kitchen
Planning your kitchen sockets might not be the most exciting part of a renovation, but getting it right makes a huge difference to how easy your kitchen is to use.
Kitchen
Do I need to use 'kitchen paint' rather than emulsion for my kitchen?
For rooms prone to high humidity levels and moisture accumulation due to steam from cooking, dish washing and cleaning.
Kitchen
Pros and cons of different surface materials for kitchens
Choosing the right surface materials for your kitchen is crucial for both aesthetic appeal and functionality.
Kitchen
The essential guide to kitchen islands
Designing the perfect kitchen island starts with getting the spacing just right. From clearance zones to island dimensions, our guide breaks down everything you need to create a functional and stylish centerpiece for your kitchen.




“Simpler and easier to use than anything else out there”
People ❤️ renovating with Reno
Reno was a game changer in my renovation project, made it easy. It helped make my project a reality. Very happy and recommend Reno to anyone.
I used the app to design, organise and cost the job and it made communication with the people doing the work really straightforward as we were all clear about what had been priced and the spec.
It's given me the detail I need to have realistic conversations about cost and break our renovation plans down into bitesize chunks to suit our time and budget.
Start your renovation with Reno