It's a story we know too well.
You're filled with excitement, envisioning a serene, spa-like retreat, but the logistics? Not so zen.


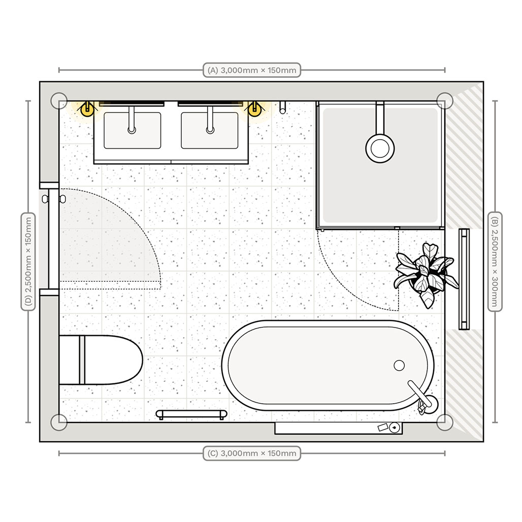
From sketches to a dream bathroom
Jess and her family had a clear vision for their new bathroom, but getting it down on paper? That was a different story. "I was relying on pitiful sketches," Jess admits. It wasn't cutting it.
That's when she discovered Reno - and everything changed.
"We really love your website concept," Jess shared. "It helped us design our dream relaxing oasis bathroom." With Reno's simple, visual design tools, she could finally map out the space in detail, getting the positioning of the vanity, bath, and toilet just right. No more guesswork, no more frustration.
Jess was able to visualise how each element would flow in the space, making sure the toilet was tucked out of sight when you first walk in - a small detail that made a big impact.
No miscommunication, no surprises. Reno turned a potential headache into a smooth, collaborative process.
Saving time and headaches
Before Reno, Jess was scribbling on paper, trying to communicate her ideas to her builder. Now? Everything was crystal clear. "It saved me a tonne of time," she said, "and it was easy to give to our builders." No more back-and-forth trying to explain where things should go. With Reno, her plans were all laid out, ready to go.
Jess used the app to share her design with bathroom suppliers to get accurate quotes and worked with her builder to ensure everything was executed perfectly. "It prompted thorough thinking about waste, walls, and materials," she added.
A tool for the whole home?
If Jess had one regret, it was this: she wished she had Reno for the rest of her home. "We wish we were able to use the app on the rest of the house," Jess said, thinking back to her earlier renovation decisions. "It would have come in handy when developing a lighting plan and carpentry."
She even had ideas for the future: "There's so much potential to add in products with AI so you can really see your room come to life when making big choices like painting, flooring, and furnishings."


The bottom line
Jess's bathroom went from paper sketches to a serene, beautifully designed space with the help of Reno. And the best part? She's now a Reno believer. "I wish I had this for other rooms in my house." It helped her plan, communicate, and visualise exactly how her dream bathroom would come to life - without the headaches.
Jess's story is proof of what's possible when you have the right tools. Whether you're designing a single room or tackling a whole house reno, Reno helps you take control of your project.
Save your renovation with a plan made on Reno.
Use Reno to design and plan your renovation. Get the results you want, first time, no rework and no going over budget ...or your money back with our 12 month guarantee!
Single Room
Best for people renovating a single room
1 room, access for 6 months
What's Included
Multi-Room
Best for people renovating multiple rooms and whole homes
Up to 30 rooms, access for 12 months
What's Included
Multi-Room Plus
Best for people renovating very large homes and/or second homes
Unlimited rooms, access for 12 months
What's Included
Are you looking for our plans for Trades or Interior Designers?
Explore Reno...
Join our mailing list and get 10% off
By signing up, you are agreeing to our Terms and Privacy Policy including receiving emails from us at Reno (you can unsubscribe at any time). Opted out but want back in? Rejoin the mailing list .
Start your renovation with Reno